FEATURE
狭いトイレも上部空間を活かして、収納量をアップ!
狭いスペースにトイレットペーパーや洗剤をひとまとめにでき、すっきりとしたトイレ空間を作ることができます。
アロマや観葉植物を飾ったり、お気に入りの雑貨を飾って居心地のいい空間を演出できます。
■トイレットペーパー12ロール収納可能
■洗剤やサニタリー用品もすっきり収納
■扉は静かにゆっくり閉まるダンパー付き
■積載重量10kg
■石膏ボードでも取り付け可能
SPEC INFORMATION
| 納期 | お問い合わせください |
| 原産国 | 日本 |
| 商品番号 | Sタイプ JP51372/Dタイプ JP51373 |
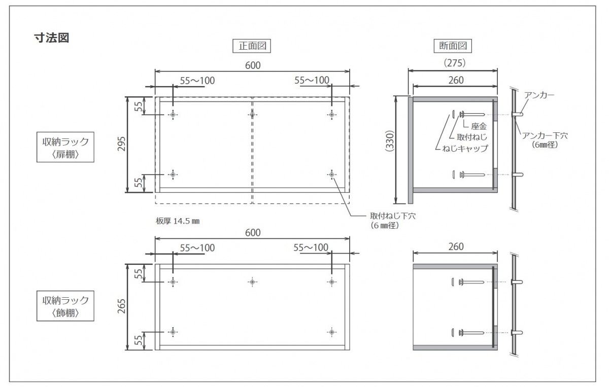
| サイズ | JP51372:幅600×奥行275×高さ330mm(扉棚) JP51373:幅600×奥行275×高さ330mm(扉棚)、幅600×奥行260×高さ265mm(飾棚) |
| 材質 | 天板・地板:ポリエステル化粧合板 上記以外:プリント紙化粧合板 |
| 耐荷重 | 各棚10kg |
| 付属部品 | アンカー、取付ねじ(皿タッピンねじ5×70)、座金、ねじキャップ、クッション |



